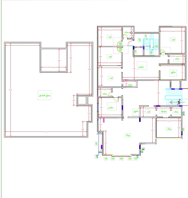
مشروع فيلا السبيعي.
تم تصميم المبنى لتحقيق أقصى استفادة من المساحات . يشمل المشروع أعمال التشطيب الداخلي والخارجي، وتأسيس السباكة والكهرباء، وتمديدات التكييف (النحاس والدكت)، وتركيب الأرضيات، والدهانات، والأبواب، والنوافذ، والديكورات الداخلية
لن يتم نشر عنوان بريدك الإلكتروني. الحقول الإلزامية مشار إليها بـ *
التعليق *
الاسم *
البريد الإلكتروني *
الموقع الإلكتروني
احفظ اسمي، بريدي الإلكتروني، والموقع الإلكتروني في هذا المتصفح لاستخدامها المرة المقبلة في تعليقي.
اسمك
بريدك الإلكتروني
الموضوع
رسالتك (اختياري)
لا يوجد تعليق